Rénover un immeuble de bureaux abandonné des années 1960 en hôtel d'entreprises labellisé EnerPHit avec moins de 2 000 euros de budget par mètre carré ? À Saint-Brieuc, le groupement mené par nunc architectes a relevé le défi, qui plus est sans vraiment viser la certification passive dès le début du projet. Comment ? Principalement en dosant intelligemment les interventions. Le Totem, ou quand la rigueur transforme les contraintes en opportunités.
Concepteurs passifs par nature
Atteindre le standard Passivhaus est une ambition qui se décide dès l’esquisse. Sauf à avoir parfaitement assimilé la méthode de conception passive et à faire preuve d’une rigueur sans faille tout au long du chantier… C’est précisément ce qu’a réussi l’équipe pilotée par nunc architectes, entourée des bureaux d’études Hinoki (fluides et thermique) et Wigwam (étanchéité à l’air) : transformer les anciens bureaux de la CAF de Saint-Brieuc en hôtel d’entreprises-coworking labellisé EnerPHit quand bien même la certification passive n’était à proprement parler pas visée avant l’obtention des résultats du premier test d’étanchéité à l’air. Une prouesse peu commune mais finalement alignée avec l’histoire de ce bâtiment marqué par les imprévus et les tâtonnements. Dessiné par l’architecte rennais Jean Lemercier et emblématique des années 1960 avec ses pignons en granit, il est en effet abandonné en 2013, mais reste utilisé par plusieurs opérateurs de télécommunication qui ont installé leurs antennes sur son toit. Il échoit ensuite à Saint-Brieuc Armor Agglomération qui lance, en décembre 2021, un concours pour le transformer en incubateur de start-ups, avant que le programme n’évolue à nouveau.
Des architectes engagés
Fondée à la toute fin des années 1980, nunc est une agence au fonctionnement et à l’histoire atypiques, fragmentée dès l’origine en plusieurs pôles (Alsace, Bretagne et Savoie), auxquels s’ajoutera par la suite une antenne parisienne. Géographiquement proche de la Suisse, de l’Autriche et bien sûr de l’Allemagne, l’agence développe très tôt une sensibilité à la méthode de conception Passivhaus. Membre du mouvement pour la Frugalité heureuse, nunc s’attache par ailleurs à pousser toujours plus loin le curseur de la durabilité : « À chaque projet, on essaie de franchir un cap », explique Pierre Béout, l’un des fondateurs de l’agence.
Sobriété stratégique
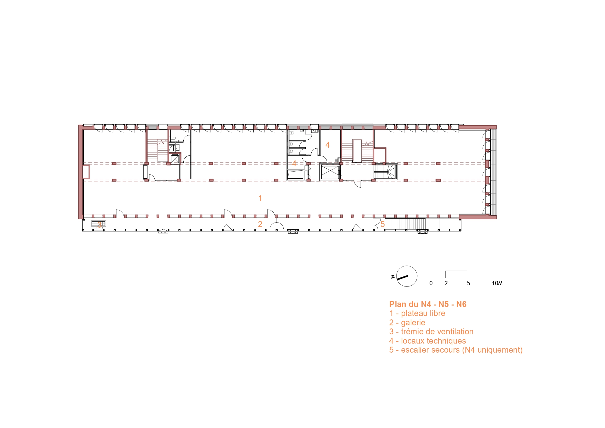
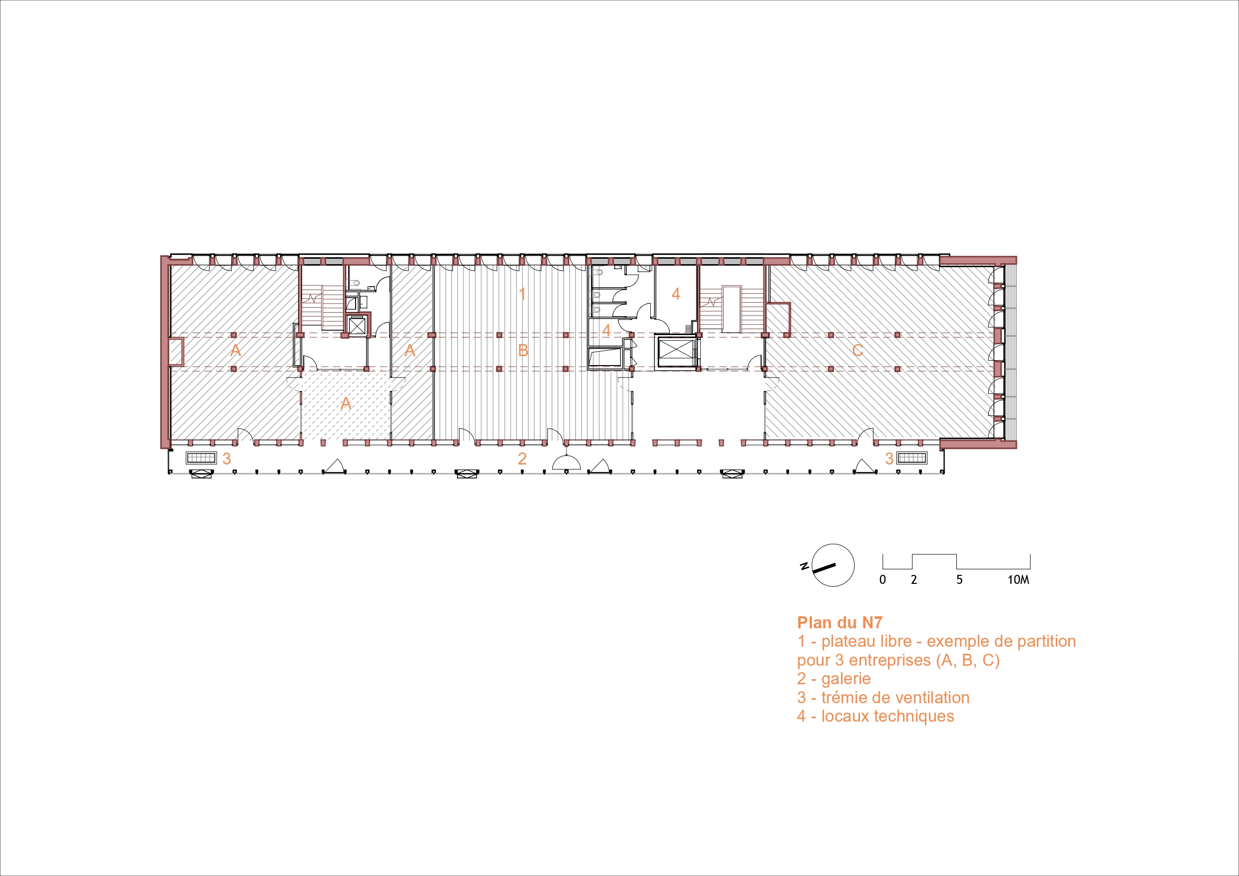
« Dès le début, notre effort s’est porté sur la question suivante : comment réaliser un bâtiment polyvalent et confortable tout en respectant un budget initial très serré ? », contextualise Pierre Béout, co-fondateur de nunc architectes. La réponse, les concepteurs la trouvent en dosant leurs efforts, en analysant finement l’existant pour intervenir avec justesse et sobriété. « Nous avions affaire à un bâtiment assez mince, profond de 13 mètres seulement. Or, à chaque étage, un grand couloir central desservait de part et d’autre des bureaux exigus et cloisonnés. De plus, les escaliers complètement ouverts sur les circulations ne permettaient pas de respecter facilement les normes incendies en vigueur. » Les équipes de nunc architectes ont donc l’idée de déporter l’ensemble des circulations en dehors du volume originel, dans une double-peau en ossature bois accolée contre la façade principale, à l’ouest. Les bénéfices de cette nouvelle coursive sont multiples : libérer les différents plateaux – lesquels peuvent désormais être aménagés à l’envi pour embrasser des usages plus contemporains (open spaces, flex offices, salles de réunions, etc.) – ; respecter l’esprit de la façade de Jean Lemercier ; et enfin maximiser les apports solaires passifs.
Un programme riche
Situé à quelques mètres seulement de la gare, le Totem abrite en son sein plusieurs espaces et services, parmi lesquels des bureaux, des coworking, des espaces de réunions, des salles de réception, ainsi qu’un restaurant. Propice à l’organisation d’événements, c’est une nouvelle adresse imaginée pour entrer dans le quotidien des Briochines et Briochins.
La force de l’expérience
Maximiser les apports solaires passifs à outrance avec la création de cette double-peau vitrée, c’est justement ce qui inquiète Thomas Primault du BET Hinoki, qui voit dans ce vaste mur rideau orienté plein ouest un très fort risque de surchauffe en été. « Nous avons anticipé une multitude de scénarios grâce à la simulation thermique dynamique (STD). Dans le pire des cas, c’est-à-dire avec un vitrage classique (facteur solaire de 0,5), un plancher plein et sans ventilation, on atteignait facilement 40, voire 45°C dans les circulations. Un vrai four, résume l’ingénieur. Partant de là, on a préconisé les solutions suivantes : un double vitrage à contrôle solaire qui limite la surchauffe (facteur solaire de 0,22-0,25 environ), associé à un système de ventilation naturelle reposant sur des fenêtres à ventelles commandées par la GTC en fonction des différentiels de température, ainsi que sur des trémies de ventilation aménagées dans le plancher de chaque galerie, lesquelles, couplées aux ventelles, génèrent une sorte d’effet de cheminée. Résultat : bien qu’il ait fait très chaud à l’été 2025 – le premier après la livraison –, le mercure n’est pas monté au-dessus de 25°C ! »
Réglages, usage et pilotage
« Le projet dispose d’une gestion technique centralisée (GTC) qui pilote la ventilation mécanique et naturelle, les apports de chauffage ou de climatisation, les sondes CO2, le tout en fonction de l’occupation des espaces. Cela nécessite forcément quelques réglages », détaille Thomas Primault. Pierre Béout confirme : « Récemment, les occupants ont eu froid parce que le bâtiment est resté en mode «réduit» durant les vacances. Résultat : le bâtiment est descendu à 16°C, et il a fallu un peu de temps pour remonter jusqu’à 19, voire 21°C. » « Heureusement, l’exploitant a bien pris le sujet en main et nous appelle dès que nécessaire », précise l’ingénieur.
Un budget en tension, mais maîtrisé
Cofinancé par Saint-Brieuc Armor Agglomération, la Région Bretagne, l’État et l’Europe, le budget pour la rénovation – et le désamiantage ! – du Totem s’élevait initialement à 7,7 millions d’euros. Une enveloppe que les concepteurs ont essayé de respecter autant que possible, en limitant notamment les interventions sur l’existant et les opérations de démolition. Le parti pris de limiter les finitions traditionnelles participe également de cette volonté de réserver le budget pour la performance énergétique de l’enveloppe. Malgré ces précautions, la facture s’élève finalement à 10,3 millions d’euros HT. « Si l’on ajoute les aménagements intérieurs, avec la signalétique et tous les équipements, on arrive à un montant légèrement inférieur à 2 000 euros du mètre carré, ce qui n’est vraiment pas cher pour un immeuble briochin en R+9 situé en plein centre-ville, à côté de la gare », argumente Pierre Béout. Et Thomas Primault d’ajouter : « Sur un projet de rénovation de cette ampleur, il y a toujours des surprises, quels que soient les diagnostics réalisés en amont. On découvre toujours des choses au moment du curage : un mur qui n’aurait pas dû être là, une fragilité structurelle non détectée… Cela entraîne inévitablement des surcoûts. »
FICHE TECHNIQUE
livraison 2025 – localisation Saint-Brieuc, Côtes-d’Armor – label EnerPHit – surface de référence énergétique 5 202 m² – coût des travaux 10 300 000 euros HT – besoins de chauffage 20 kWh/(m²a) – besoins de rafraîchissement et de déshumidification 4 kWh/(m²a) – puissance de rafraîchissement 11 W/m² – fréquence d’humidité excessive 0 % – test d’infiltrométrie n50 = 0,7/h – consommation d’énergie primaire 116 kWh/(m²a) – consommation d’énergie primaire renouvelable 58 kWh/(m²a) – murs extérieurs U = 0,218 W/(m²K) – dalle U = 0,162 W/(m²K) – toiture U = 0,152 W/(m²K)


